最好看的2018免费观看在线-最好看的2019中文电影-最好免费观看高清视频免费-最近免费中文字幕大全免费版视频

您好!歡迎光臨烜芯微科技品牌官網!

深圳市烜芯微科技有限公司

ShenZhen XuanXinWei Technoligy Co.,Ltd
二極管、三極管、MOS管、橋堆

全國服務熱線:18923864027

  • 熱門關鍵詞:
  • 橋堆
  • 場效應管
  • 三極管
  • 二極管
  • RS2A快恢復二極管參數
    • 發布時間:2019-07-25 14:33:05
    • 來源:
    • 閱讀次數:
    RS2A快恢復二極管參數
    烜芯微是國內專業生產二極管,三極管,MOS管的生產廠家,先進的二極管,三極管,MOS管生產設備以及專業的工程師,可以很好的幫助客戶朋友穩定好品質,全自動化一貫機,加快了生產速度,以及成本的下降,實現了品質,供貨速度與價格的優勢,今天我們分享,RS2A二極管參數
    RS2A二極管參數
    RS2A二極管參數
    RS2A屬于快恢復二極管,有DO-214AC/DO-214AA,2種封裝,快恢復二極管(簡稱FRD)是一種具有開關特性好、反向恢復時間短特點的半導體二極管,主要應用于開關電源、PWM脈寬調制器、變頻器等電子電路中,作為高頻整流二極管、續流二極管或阻尼二極管使用
    RS2A快恢復二極管規格書DO-214AC:點擊下載
    RS2A快恢復二極管規格書DO-214AA:點擊下載
    Maximum repetitive peak reverse voltage VRRM 最大重復峰值反向電壓:50V
    Maximum DC blocking voltage VDC 最大直流閉鎖電壓:50V
    Maximum average forward rectified current I(AV) 最大正向平均整流電流:2.0A
    Maximum instantaneous forward voltage at 2.0A VF 2.0A時的最大瞬時正向電壓:1.3V
    Ma ximum reverse reco very time trr 最大反向恢復時間:150ns
    Maximum DC reverse current at rated DC blocking voltage TA=25℃ IR 額定直流阻斷電壓下的最大直流反向電流:5.0μA
    Maximum DC reverse current at rated DC blocking voltage TA=125℃ IR 額定直流阻斷電壓下的最大直流反向電流:50.0μA
    Operating junction and storage temperature range TJ,TSTG 工作溫度和存儲溫度范圍:-65to +150℃
    RS2A特快恢復二極管,DO-214AC封裝尺寸:
    黑膠長:最高值4.5mm,最低值3.99mm
    總長:最高值5.28mm,最低值4.8mm
    寬:最高值2.8mm,最低值2.54mm
    高:最高值2.42mm,最低值1.98mm
    RS2A二極管參數
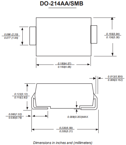
    RS2A特快恢復二極管,DO-214AA封裝尺寸:
    黑膠長:最高值4.57mm,最低值4.06mm
    總長:最高值5.59mm,最低值5.21mm
    寬:最高值3.94mm,最低值3.30mm
    高:最高值3.12mm,最低值2.82mm
    RS2A二極管參數
    烜芯微專業制造二三極管,MOS管,20年,工廠直銷省20%,1500家電路電器生產企業選用,專業的工程師幫您穩定好每一批產品,如果您有遇到什么需要幫助解決的,可以點擊右邊的工程師,或者點擊銷售經理給您精準的報價以及產品介紹
    相關閱讀